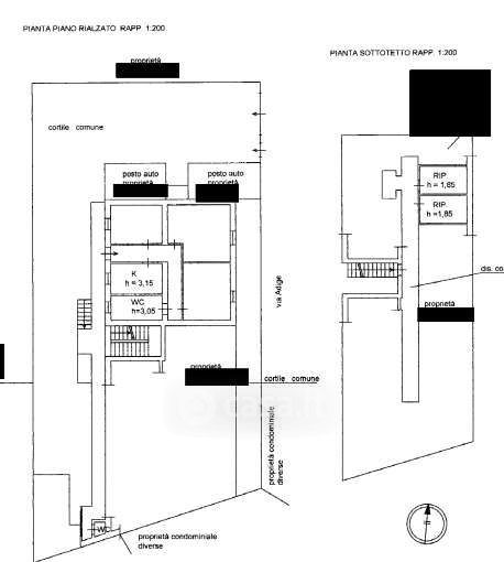
Appartamento in vendita Via Adige 36, Vigevano
Salva
Contatta l'inserzionista
Casa.it