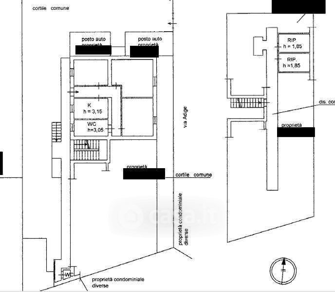
Appartamento in vendita Via Adige 36, Vigevano
Salva
Casa.it
1/28
  • Street View
  • Map