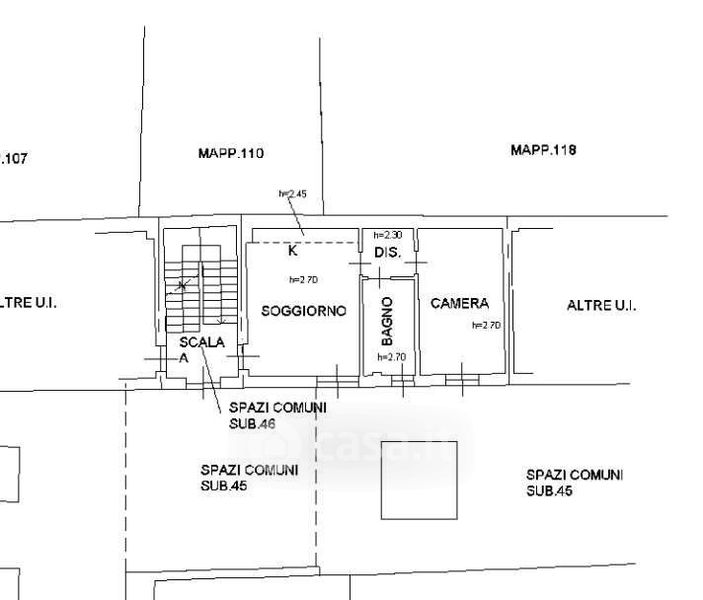
Appartamento in vendita Via Emilia 37, Villa Cortese
Salva
Casa.it
1/32
  • Street View
  • Map