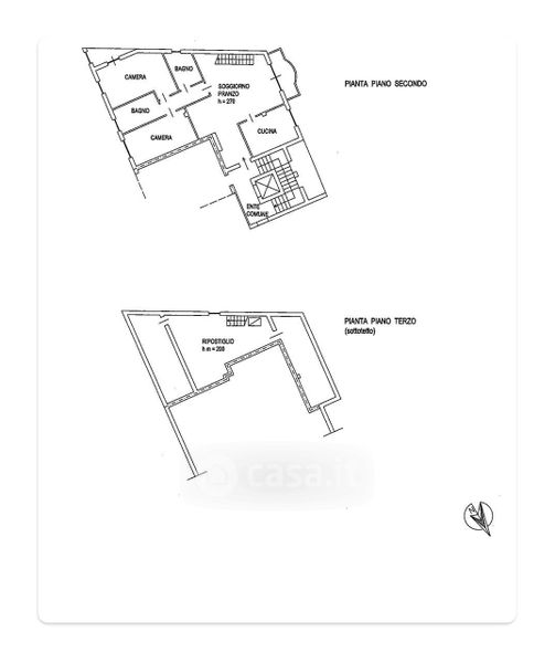
Appartamento in vendita Via Tevere 8, Villa Guardia
Salva
Casa.it
1/20
  • Street View
  • Map