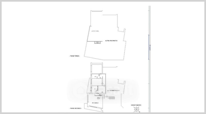
Appartamento in vendita Stradello Campestre , Villimpenta
Salva
Casa.it
1/39
  • Street View
  • Map