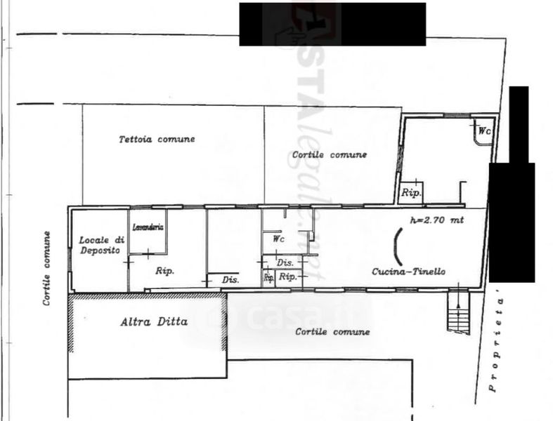
Appartamento in vendita Via Alessandro Maragliano 12, Voghera
Salva
Casa.it
1/25
  • Street View
  • Map