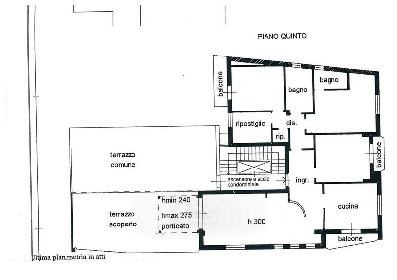
Appartamento in vendita Via XX Settembre , Voghera
Salva
Casa.it
1/40
  • Street View
  • Map