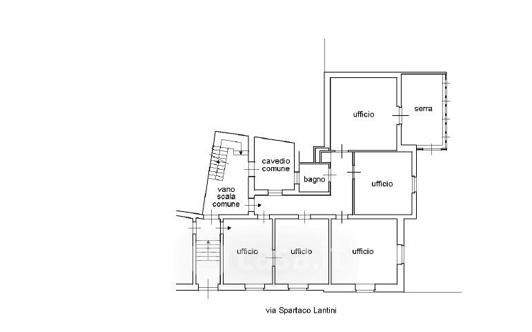
Appartamento in vendita Via Lantini Spartaco 3, Voghera
Salva
Casa.it
1/33
  • Street View
  • Map