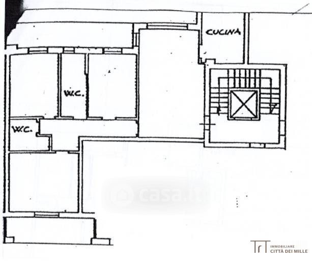
Appartamento in vendita Via Libertà 1 C, Zanica
Salva
Casa.it
1/10
  • Street View
  • Map