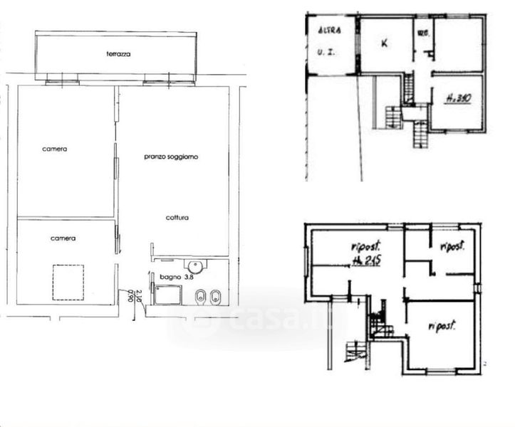
Appartamento in vendita Piazza M. Buonarroti 7, Zelo Buon Persico
Salva
Casa.it
1/17
  • Street View
  • Map