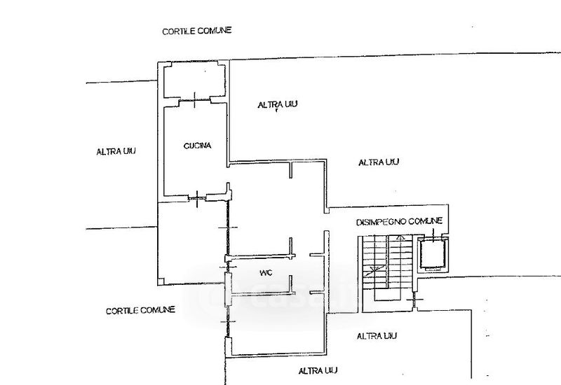
Appartamento in vendita Via Enrico Fermi 24, Zibido San Giacomo
Salva
Casa.it
1/18
  • Street View
  • Map