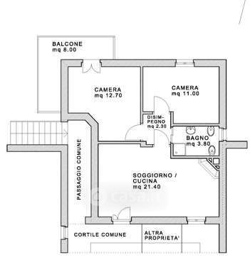
Appartamento in vendita Via Torre , Zogno
Salva
Casa.it
1/14
  • Street View
  • Map