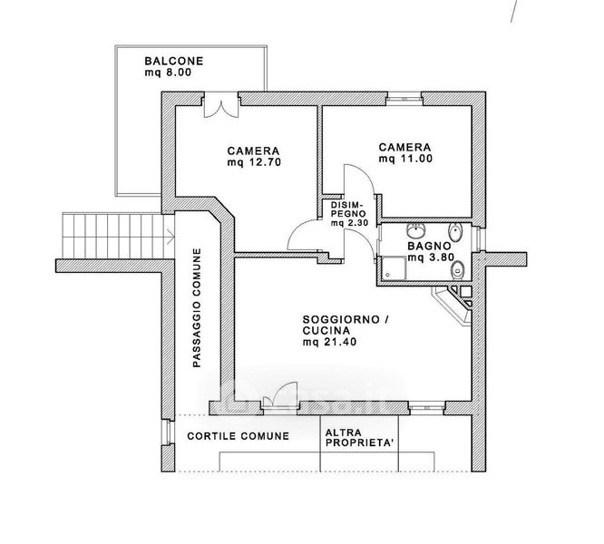
Appartamento in vendita Via Torre 15, Zogno
Salva
Casa.it
1/25
  • Street View
  • Map