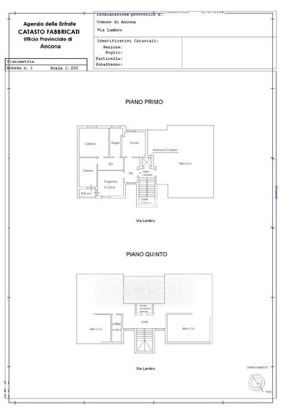
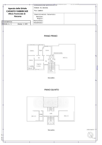
Appartamento in vendita Via Lambro 23, Ancona
Salva
Casa.it
1/19
  • Street View
  • Map