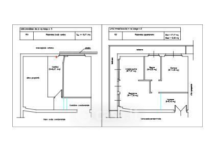
Appartamento in vendita Via Asiago 5, Ancona
Salva
Casa.it
1/2
  • Street View
  • Map