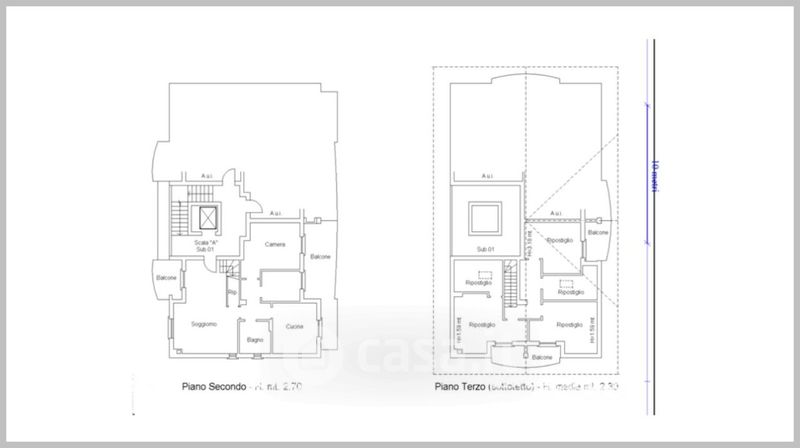
Appartamento in vendita Via Dino Angelini , Ascoli Piceno
Salva
Casa.it
1/32
  • Street View
  • Map