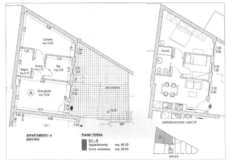
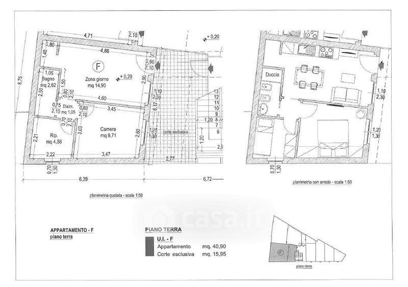
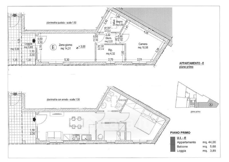
Appartamento in vendita Via Giuseppe Mazzini , Civitanova Marche
Salva
Casa.it
1/21
  • Street View
  • Map