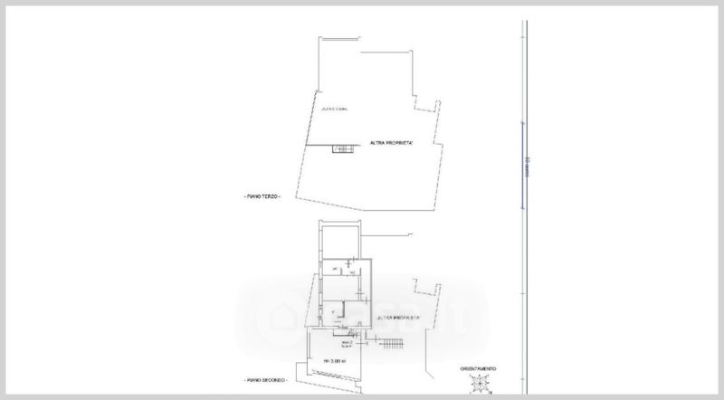
Appartamento in vendita Via Giacomo Matteotti , Colli al Metauro
Salva
Casa.it
1/32
  • Street View
  • Map