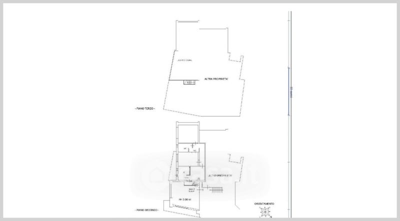
Appartamento in vendita Via 1º Maggio , Colli del Tronto
Salva
Casa.it
1/32
  • Street View
  • Map