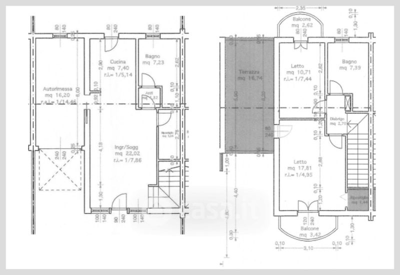
Appartamento in vendita Via Tommaso Salvadori Paleotti , Fermo
Salva
Casa.it
1/32
  • Street View
  • Map