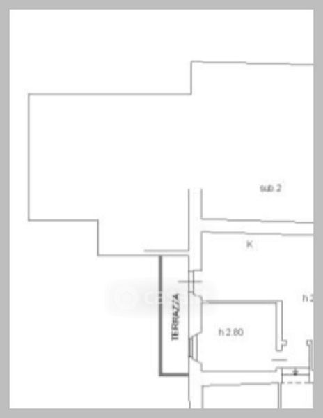
Appartamento in vendita Contrada Morelle , Magliano di Tenna
Salva
Casa.it
1/32
  • Street View
  • Map