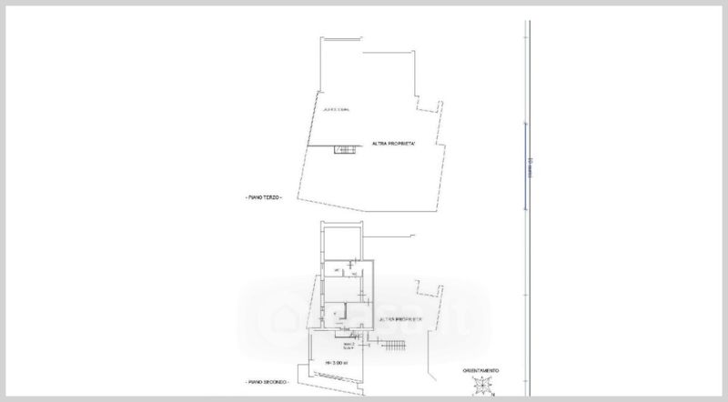
Appartamento in vendita Via Giacomo Leopardi , Monte Cerignone
Salva
Casa.it
1/39
  • Street View
  • Map