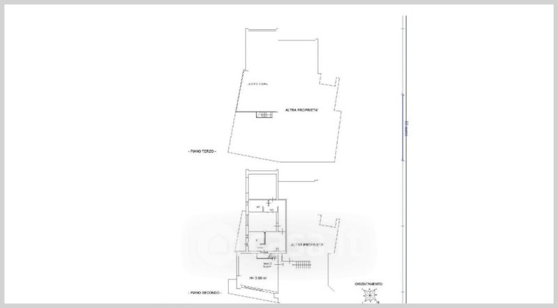
Appartamento in vendita Via Giovanni Pascoli , Monte Grimano Terme
Salva
Casa.it
1/32
  • Street View
  • Map