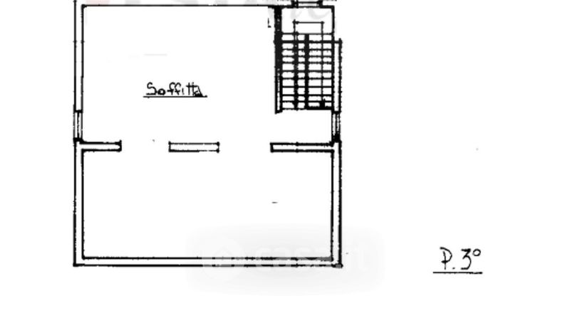
Appartamento in vendita Via M. Concezione 43, Monte San Giusto
Salva
Casa.it
1/30
  • Street View
  • Map