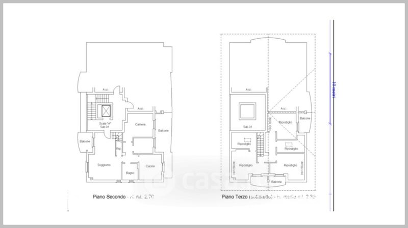
Appartamento in vendita Via San Giovanni , Monte Urano
Salva
Casa.it
1/39
  • Street View
  • Map