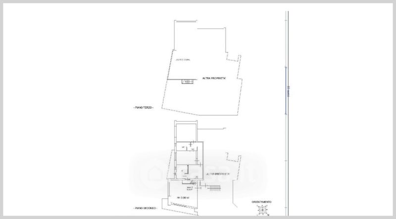
Appartamento in vendita Corso Serpente Aureo , Offida
Salva
Casa.it
1/32
  • Street View
  • Map