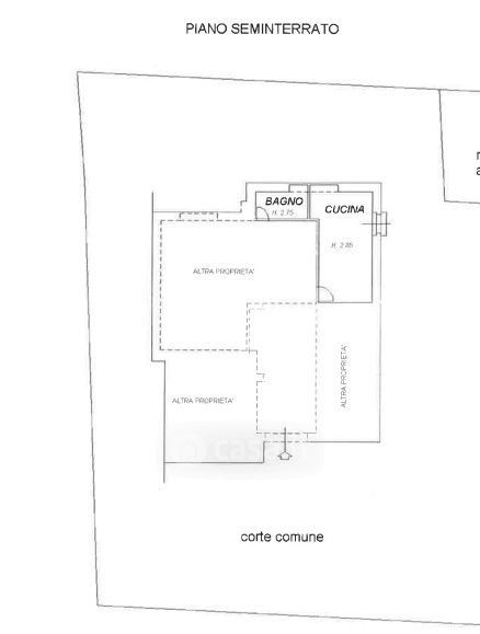
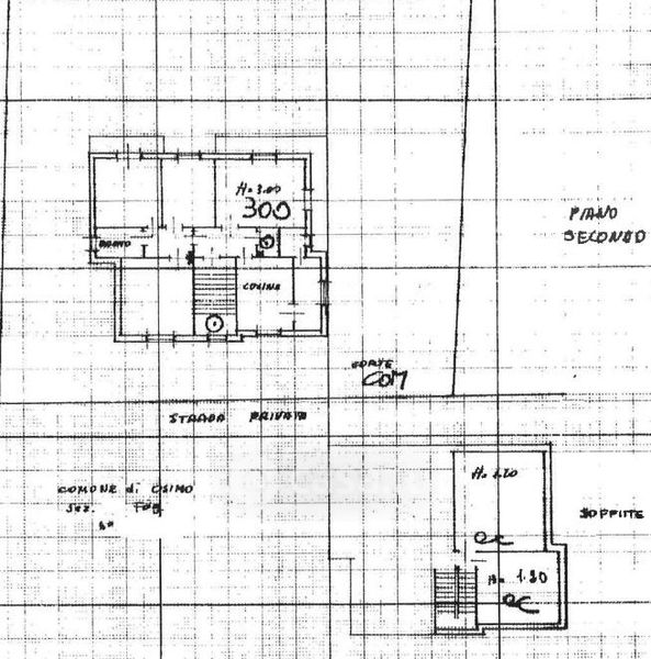
Appartamento in vendita Via San Francesco , Osimo
Salva
Casa.it
1/33
  • Street View
  • Map