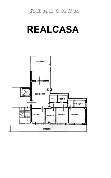
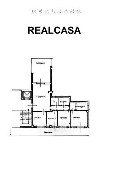
Appartamento in vendita Via A. Moro , Osimo
Salva
Casa.it
1/22
  • Street View
  • Map