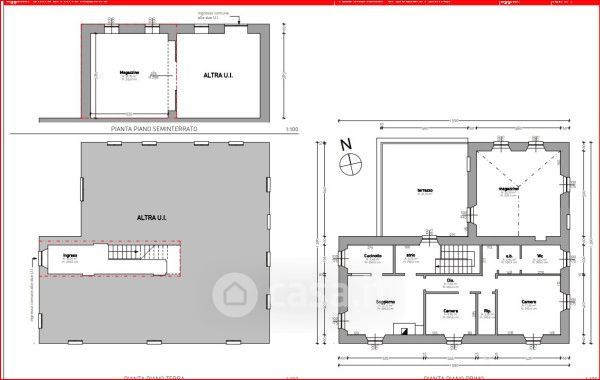
Appartamento in vendita Frazione Bellisio Alto 206, Pergola
Salva
Casa.it
1/16
  • Street View
  • Map