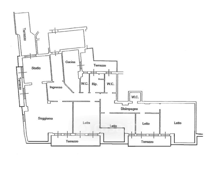
Appartamento in vendita Viale Guido Postumo , Pesaro
Salva
Casa.it
1/17
  • Street View
  • Map