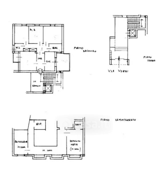
Appartamento in vendita Viale Giuseppe Verdi 40, Pesaro
Salva
Casa.it
1/31
  • Street View
  • Map