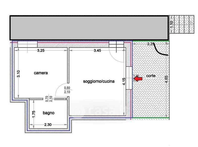
Appartamento in vendita Via Repubblica , Porto San Giorgio
Salva
Casa.it
1/18
  • Street View
  • Map