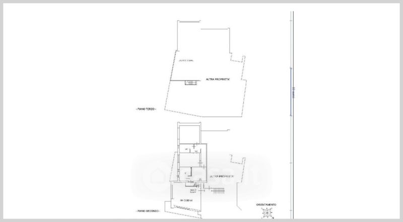
Appartamento in vendita Borgo Fratelli Rosselli , Porto San Giorgio
Salva
Casa.it
1/37
  • Street View
  • Map