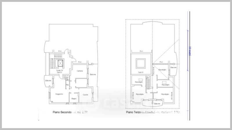
Appartamento in vendita Via Alessandro Manzoni , San Lorenzo in Campo
Salva
Casa.it
1/37
  • Street View
  • Map