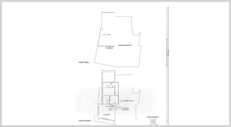
Appartamento in vendita Via del Pozzo , Sant'Angelo in Vado
Salva
Casa.it
1/39
  • Street View
  • Map