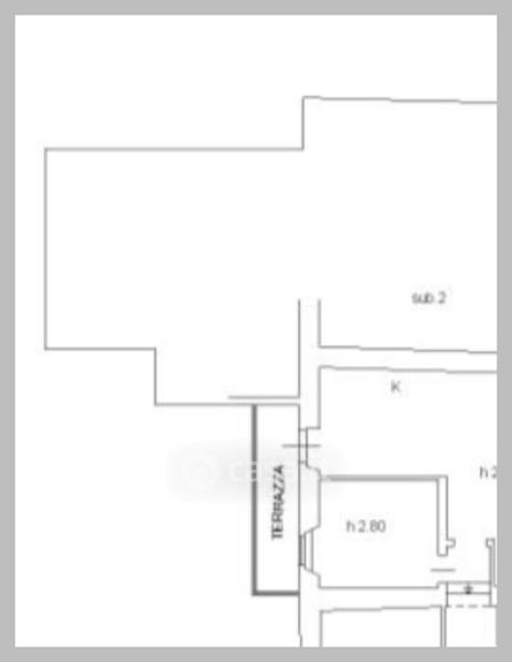
Appartamento in vendita Contrada Monte Radaldo , Santa Vittoria in Matenano
Salva
Casa.it
1/37
  • Street View
  • Map