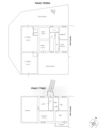
Appartamento in vendita Via Enrico Mattei , Terre Roveresche
Salva
Casa.it
1/11
  • Street View
  • Map