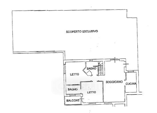
Appartamento in vendita Via Paolo Uccello , Urbino
Salva
Casa.it
1/40
  • Street View
  • Map