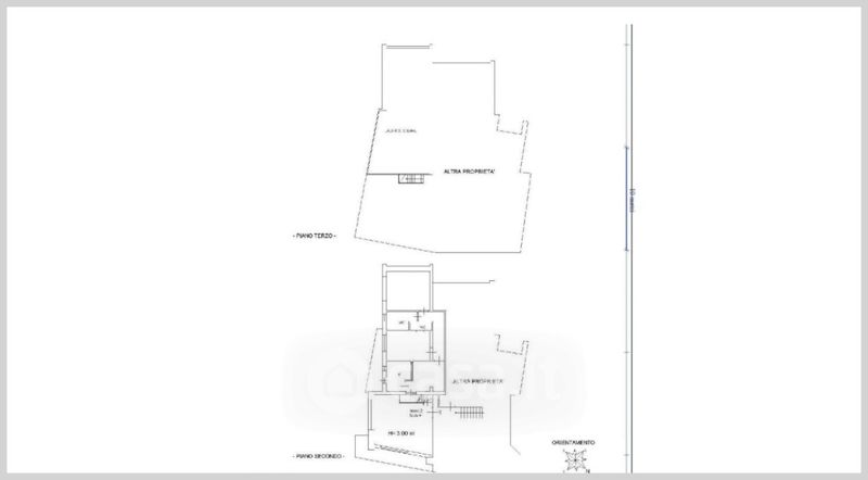
Appartamento in vendita Strada Provinciale 43 , Urbisaglia
Salva
Casa.it
1/37
  • Street View
  • Map