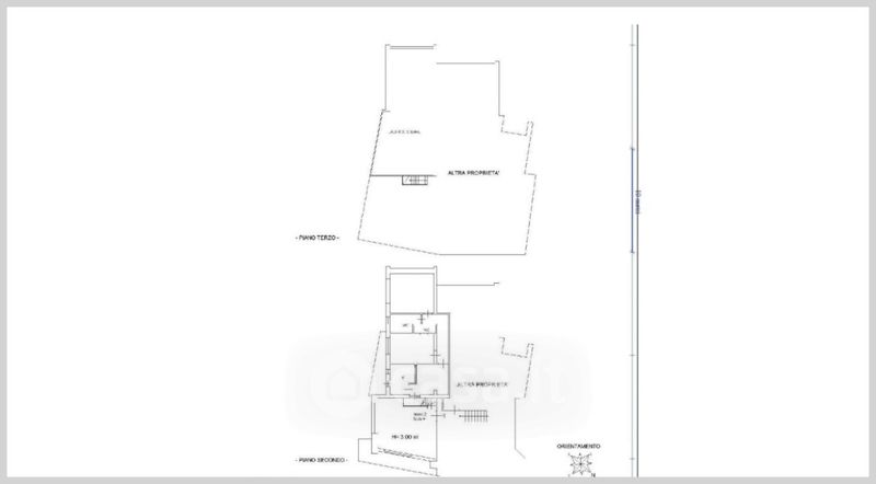
Appartamento in vendita Via dei Martiri , Fornelli
Salva
Casa.it
1/32
  • Street View
  • Map