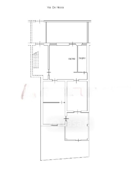
Appartamento in vendita Via Enrico de Nicola 1, Termoli
Salva
Casa.it
1/28
  • Street View
  • Map