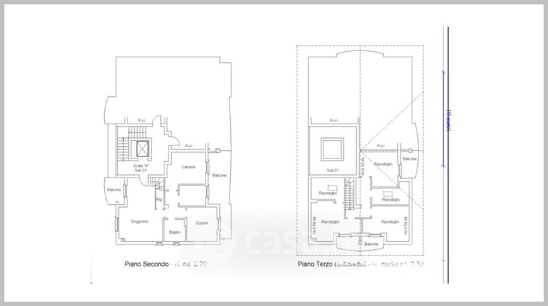
Appartamento in vendita Via Enrico de Nicola , Termoli
Salva
Casa.it
1/39
  • Street View
  • Map