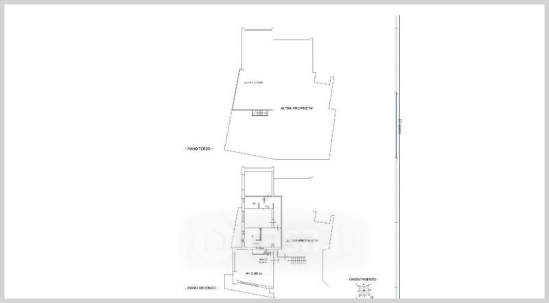
Appartamento in vendita Via Camillo Benso Conte di Cavour , Vinchiaturo
Salva
Casa.it
1/32
  • Street View
  • Map