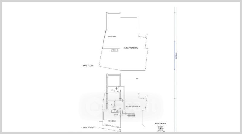
Appartamento in vendita Via Moriondo , Acqui Terme
Salva
Casa.it
1/39
  • Street View
  • Map