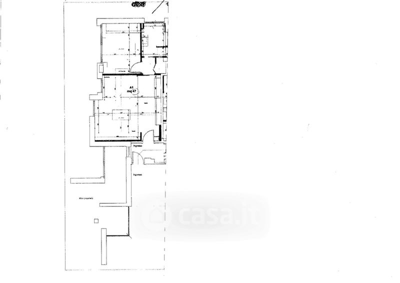
Appartamento in vendita Via Vincenzo Gioberti , Alba
Salva
Casa.it
1/10
  • Street View
  • Map