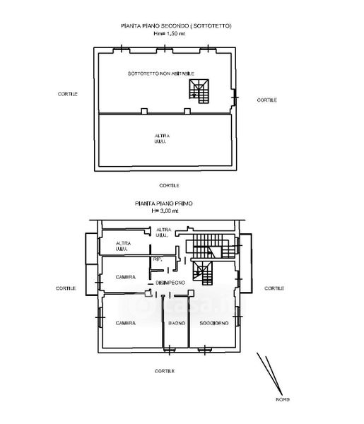
Appartamento in vendita Via Piero Gobetti 24, Alpignano
Salva
Casa.it
1/25
  • Street View
  • Map