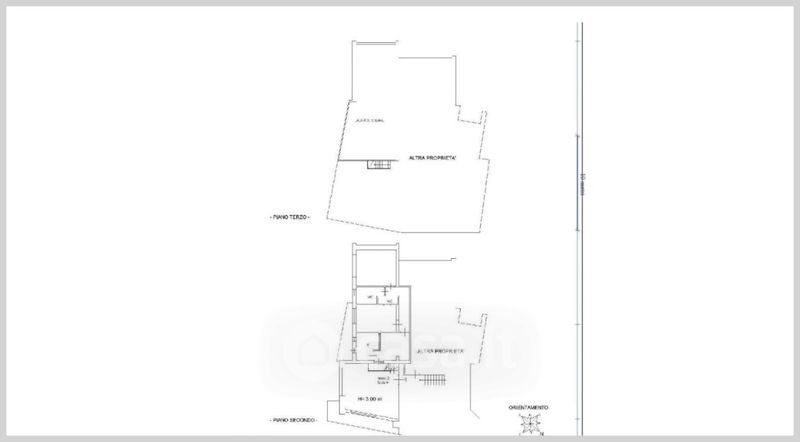
Appartamento in vendita Piazza IV Novembre , Bastia Mondovì
Salva
Casa.it
1/32
  • Street View
  • Map