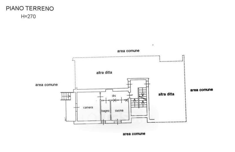
Appartamento in vendita Via Stupinigi 18, Beinasco
Salva
Casa.it
1/22
  • Street View
  • Map