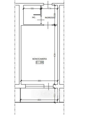
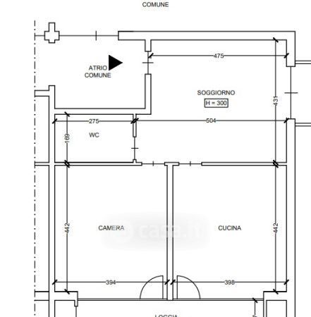
Appartamento in vendita Via San Vincenzo 177, Bibiana
Salva
Casa.it
1/16
  • Street View
  • Map