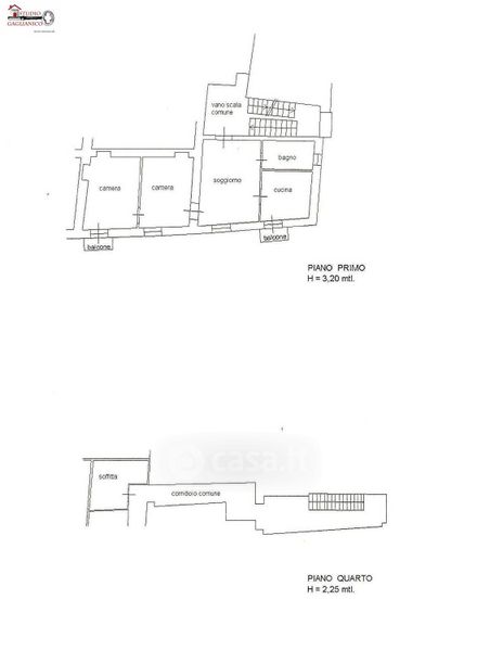
Appartamento in vendita Via Italia 75, Biella
Salva
Casa.it
1/17
  • Street View
  • Map